Alternative accommodations
Holiday home - 11 persons - 240 24 - Neochori
11 persons
Object-no.: 522-2761796
- Bedrooms 5
- Bathrooms 2
- Living area 215 m²
- Site area 4,000 m²
- Pets Not allowed
- Short breaks available Yes
- Distance sea/coast 1,500 m
- Private outdoor swimming pool Yes
- Internet access Yes
- Satelite dish/cable TV Yes
- Water view Yes
- Air conditioning Yes
- Dishwasher Yes
- Non-smoker Yes
Description
Villa Sunset extends over a spacious property of around four thousand square metres. The well-maintained garden surrounds the inviting pool with a sunbathing area, and the property is adorned with olive trees and fragrant laurel bushes.
This luxurious villa not only offers breathtaking views of the sea, but is also an oasis of peace and beauty. The location is ideal for sporting activities, excursions in the surrounding area or cosy days by the pool or beach. Enjoy a variety of experiences and be enchanted by the mesmerising sunsets.
The three-storey, 250 m² villa is divided into two luxurious sections.
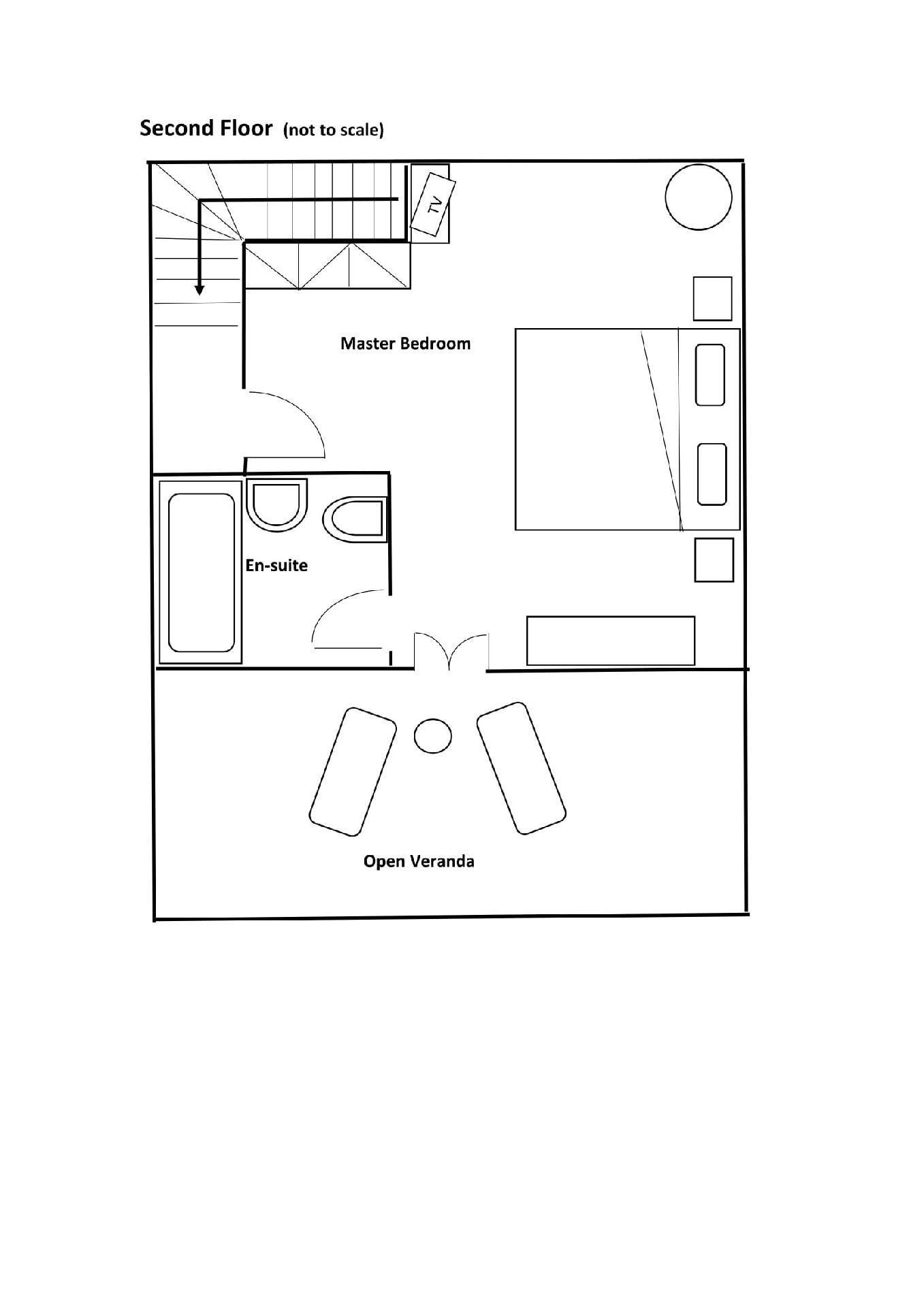
On the ground floor of the main building there are two bedrooms (one with two single beds that can be joined together and the other with a single bed), a bathroom with shower and a very large, cosily furnished living room. The living room adjoins a fully equipped open-plan kitchen. From here you have direct access to the large covered terrace with a breathtaking panoramic view over the Gulf of Messinia. The terrace is the perfect place to enjoy the most beautiful sunsets. In the tower of the villa is the large master bedroom with a king-size double bed and an en-suite bathroom with bathtub. From the bedroom you have access to a terrace with spectacular views of the sea and the mountains.
The second section, located one level below, functions as an independent guest flat. The impressive pool, which is open from 1 May to 31 October, is also located on this level. The guest flat consists of two bedrooms (the master bedroom and a smaller room with two single beds), a living room with an additional sleeping possibility, a dining area and an open-plan kitchen as well as a bathroom with shower. This flat can accommodate up to five people.
In the basement of the villa there is a laundry room with washing machine, iron and ironing board, which is available to guests. In total, the villa has five bedrooms, three bathrooms, two kitchens, two living rooms, a laundry room and four terraces on different levels with views of either the mountains or the sea. The villa can therefore accommodate up to eleven people.
The terrace offers first and foremost a fantastic view of the glittering sea. The spacious, covered terrace with its elegant sandstone arches provides the ideal setting to enjoy your breakfast with the landlord's homemade jams, and access to the secure pool area and the refreshing pool is easy from both sides of the villa.
Evenings on the terrace under the twinkling starry sky not only offer a unique barbecue experience, but also continue to showcase the mesmerising sea views. This villa is more than just a holiday home - it is your personal retreat with a breathtaking view of the ever-changing sea. Welcome to Villa Sunset, your home with an unrivalled sea backdrop!
Facilities include: a private pool (open from 15 April to 15 October), washing machine, iron and ironing board, dishwasher, microwave, safe, portable barbecue, three satellite TVs, garden furniture and sun loungers, bath towels, Wi-Fi and air conditioning in all rooms.
Fresh bed linen and towels (2 per person) are provided and are changed once a week.
Of course we also offer a cleaning service if you wish.
The villa is only one and a half kilometres from Stoupa, a tranquil tourist village with cafés, tavernas, car and bicycle hire and two of the most beautiful sandy beaches - ideal for small children. The bakery, three tavernas, the bus stop and the nearest shops are only about 300 metres away. The villa is the ideal place for a relaxing holiday in a beautiful landscape and a safe environment for children. From here you can go on various excursions to the nearby unique sights, such as stalactite caves, traditional mountain villages with maniotic defence towers, old Byzantine churches and monasteries, etc. You can also go on shorter and longer hiking tours through the unique landscape and be surprised again and again by its diversity. Of course you can also go diving, snorkelling, hiking, horse riding or mountaineering. Here you can relax from the stresses and strains of everyday life and enjoy your holiday. Your landlady will be happy to provide you with information and hiking tips.
House information: Bathrooms: 2; Bedroom: 5; Detached building; Property area: 4000 m²; Total number of floors in the building: 2; Year of construction: 2000; Year of renovation: 2014
Sleeping facilities: Number of double beds (1.80 m width): 1; Number of single beds: 5; Number of double beds (from 1.51 m to 1.79 m width): 1
Living area: CD-Player; DVD-Player; Iron; Radio; Safe; Satellite-tv; Sound system; TV
Bath/WC: Hairdryer; Hairdryer; Hairdryer; Shower; Shower; Sink; Sink; Sink; Toilet; Toilet; Toilet
Kitchen: Coffee capsule machine; Coffee machine; Dishwasher; Freezer; Freezer; Fridge; Microwave; Oven; Stove; Toaster; Water boiler
Other: Air conditioning; Baby chair; Child/baby bed; Heating; Non-smoking object; Vacuum cleaner; View; Washing machine; Wifi
House information: Bathrooms: 2; Bedroom: 5; Detached building; Property area: 4000 m²; Total number of floors in the building: 2; Year of construction: 2000; Year of renovation: 2014
Sleeping facilities: Number of double beds (1.80 m width): 1; Number of single beds: 5; Number of double beds (from 1.51 m to 1.79 m width): 1
Living area: CD-Player; DVD-Player; Iron; Radio; Safe; Satellite-tv; Sound system; TV
Bath/WC: Hairdryer; Hairdryer; Hairdryer; Shower; Shower; Sink; Sink; Sink; Toilet; Toilet; Toilet
Kitchen: Coffee capsule machine; Coffee machine; Dishwasher; Freezer; Freezer; Fridge; Microwave; Oven; Stove; Toaster; Water boiler
Other: Air conditioning; Baby chair; Child/baby bed; Heating; Non-smoking object; Vacuum cleaner; View; Washing machine; Wifi
Facilities
-
Bathroom
-
Day light
-
Hairdryer
-
Shower
-
Toilet
-
Washing stand
-
-
Bathroom features
-
Bath tub with shower
-
Day light
-
Hairdryer
-
Shower
-
Toilet
-
Washing stand
-
-
Bedroom
-
Blinds available
-
Number of double beds (1.80 m width)1
-
Number of extra beds1
-
Number of single beds1
-
-
Entertainment electronics
-
CD-player
-
DVD
-
Radio/radio alarm clock
-
Sat reception
-
TV
-
-
Equipment
-
Smoke alarm
-
Vacuum cleaner
-
Washing machine for commual use
-
-
Garden and outdoor
-
Baby chair
-
Barbeque
-
Garden furniture provided
-
Safe
-
-
Heating
-
In all rooms
-
-
Inhouse features
-
Air Conditioning
-
-
Kitchen
-
Cooking facilities (four hobs)
-
Cooler/freezer combination
-
Deep freezer
-
Dishwasher
-
Kettle
-
Microwave oven
-
Oven
-
Refrigerator
-
Toaster
-
-
Living room
-
Number of child's beds/ baby's cots1
-
Number of extra beds1
-
-
On-site leisure facilities
-
Outdoor swimming pool exclusive use
-
-
Other
-
Non-smoking house
-
-
Outdoor facilities
-
Garden
-
Terrace
-
Veranda
-
-
Parking facilities
-
Carport
-
Private parking on site
-
-
Pet allowed
-
Pets not permitted
-
-
Property type
-
Holiday house
-
-
Rental facilities
-
Bicycle rental service
-
-
Short description
-
AppearanceDetached
-
License number1249K10000347301
-
Living area215 m²
-
Maximum occupancy11
-
Maximum occupancy adults10
-
Maximum occupancy children1
-
Minimum occupancy1
-
Number of bathrooms2
-
Number of bedrooms5
-
Property area4000 m²
-
Year of construction2000
-
-
Surrounding
-
Distance to next restaurant300 m
-
Distance to sea/lake1.5 km
-
Distance to the beach1.5 km
-
Distance to the sandy beach1.5 km
-
Distance to the sea1.5 km
-
Distance to the shingle beach3 km
-
Distance to town150 m
-
Town nameNeochori
-
-
Telecommunications
-
WLAN / WIFI
-
-
Travel Instructions
-
Distance to nearest airport44 km
-
-
View from the holiday home
-
Sea/lake
-
Short stay
There is a limited chance for a short vacation this year, typically outside peak season.
Prices and calendar
Calendar
Duration
Persons
Price
Period
- Arrival
- Departure
- Duration
- 1 week
Persons
No persons specified
Please notice
Arrival not specified.
Persons not specified.